Notice
Recent Posts
바비부르스의 스케치업
[평면도 알바] _ #009 근린생활시설, 근생, 상가 평면도 입니다. 본문
투시도, 조감도, 도면 작업/도면 컬러링(배치도, 평면도, 입면도)
[평면도 알바] _ #009 근린생활시설, 근생, 상가 평면도 입니다.
바비부르스 2022. 2. 4. 14:24











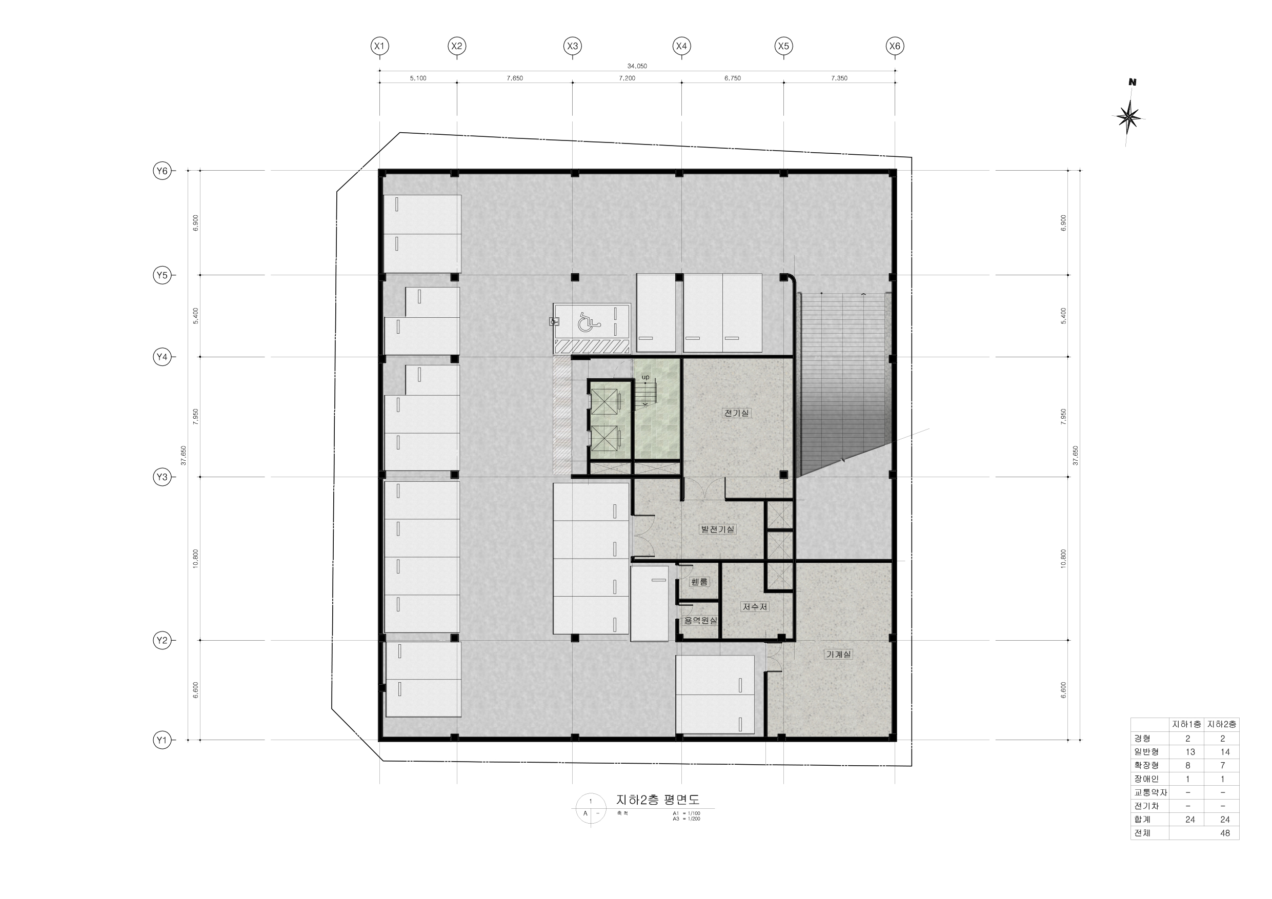
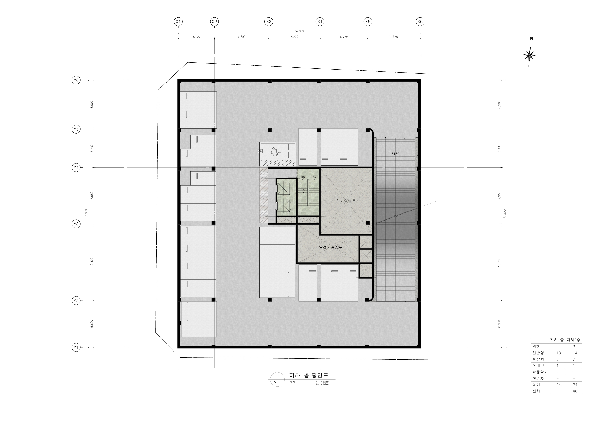
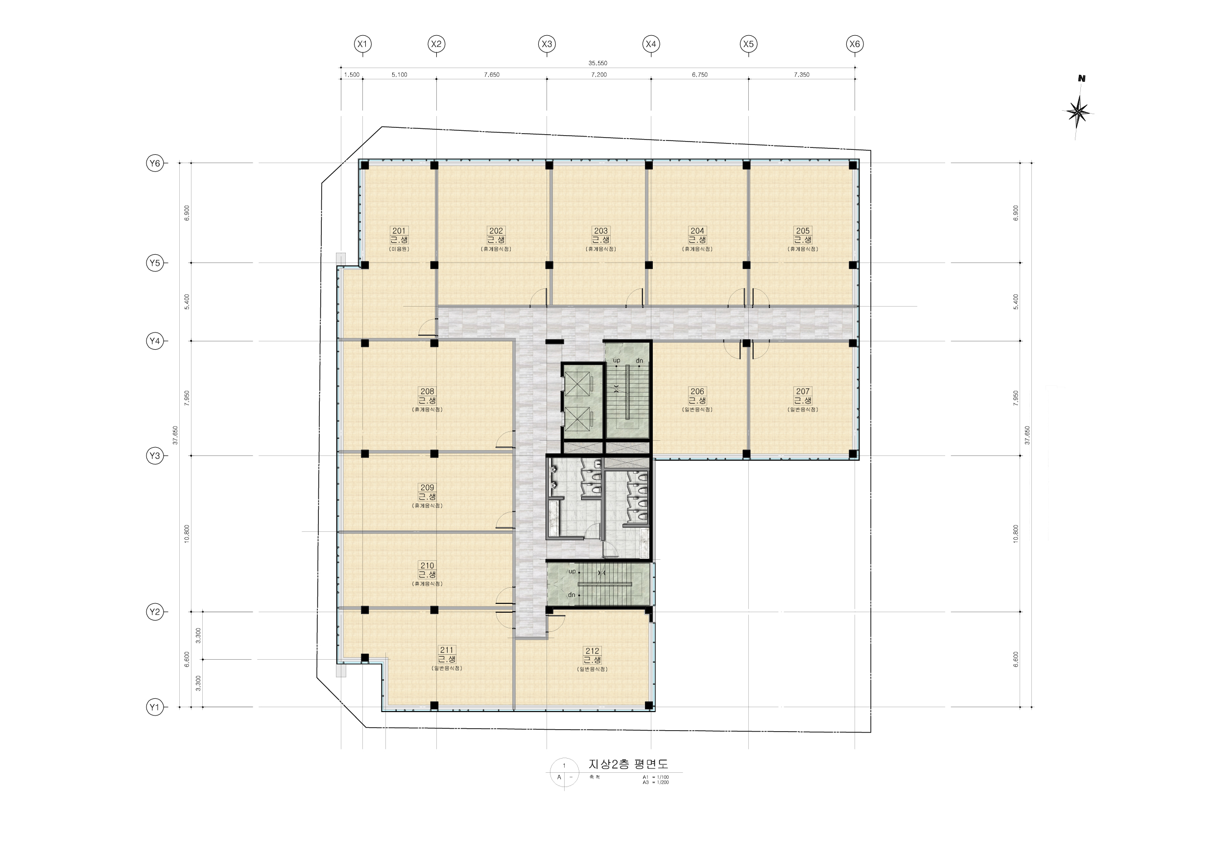
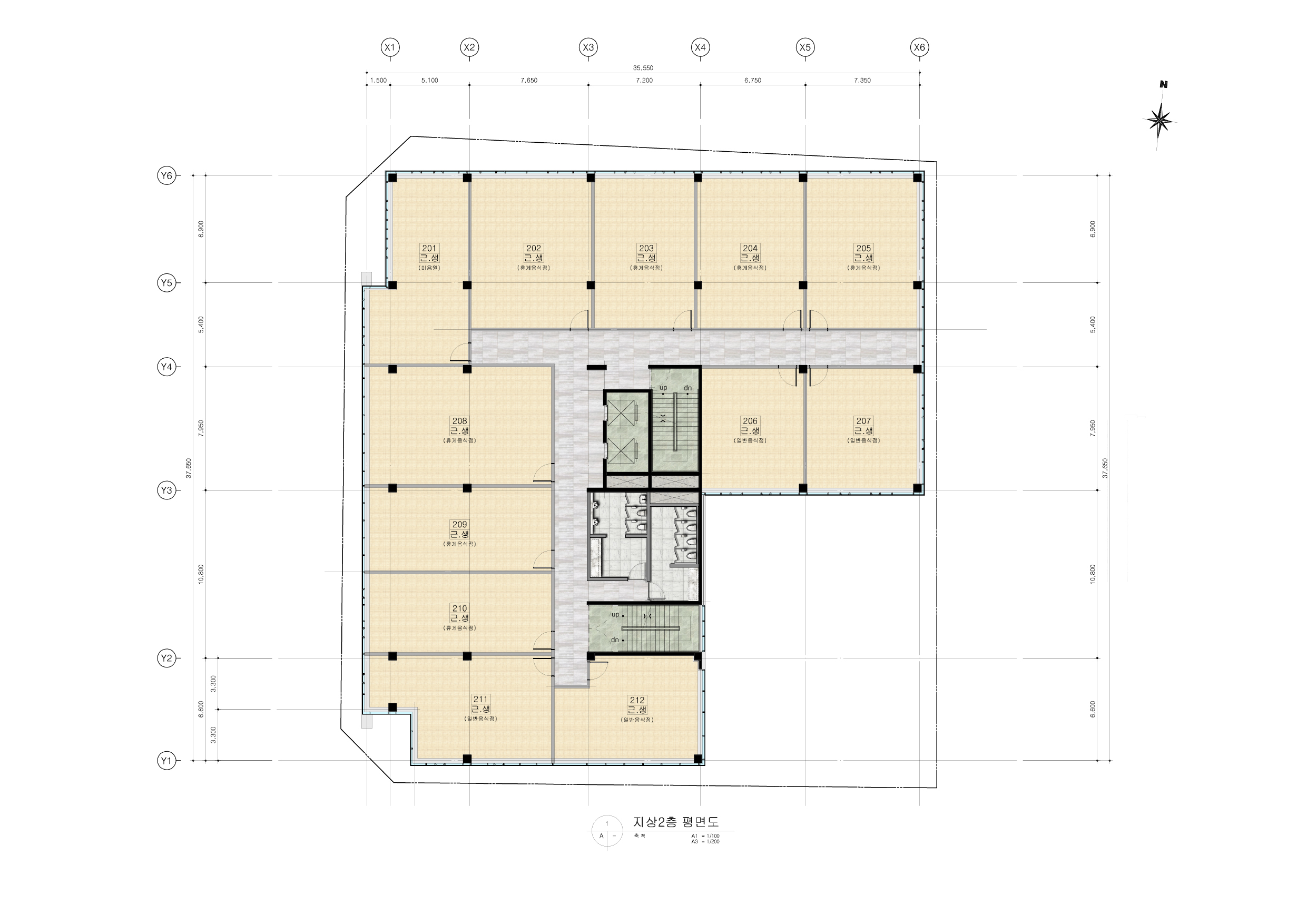
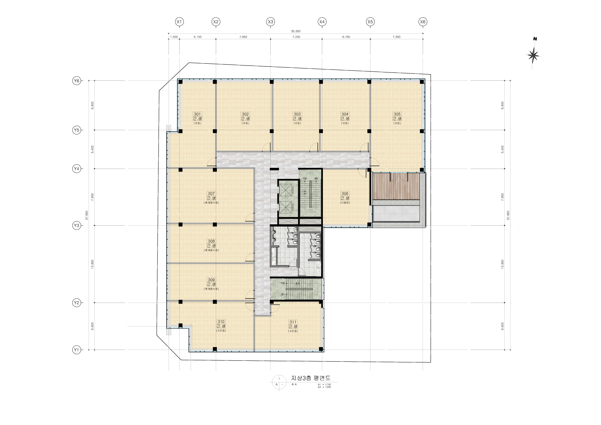
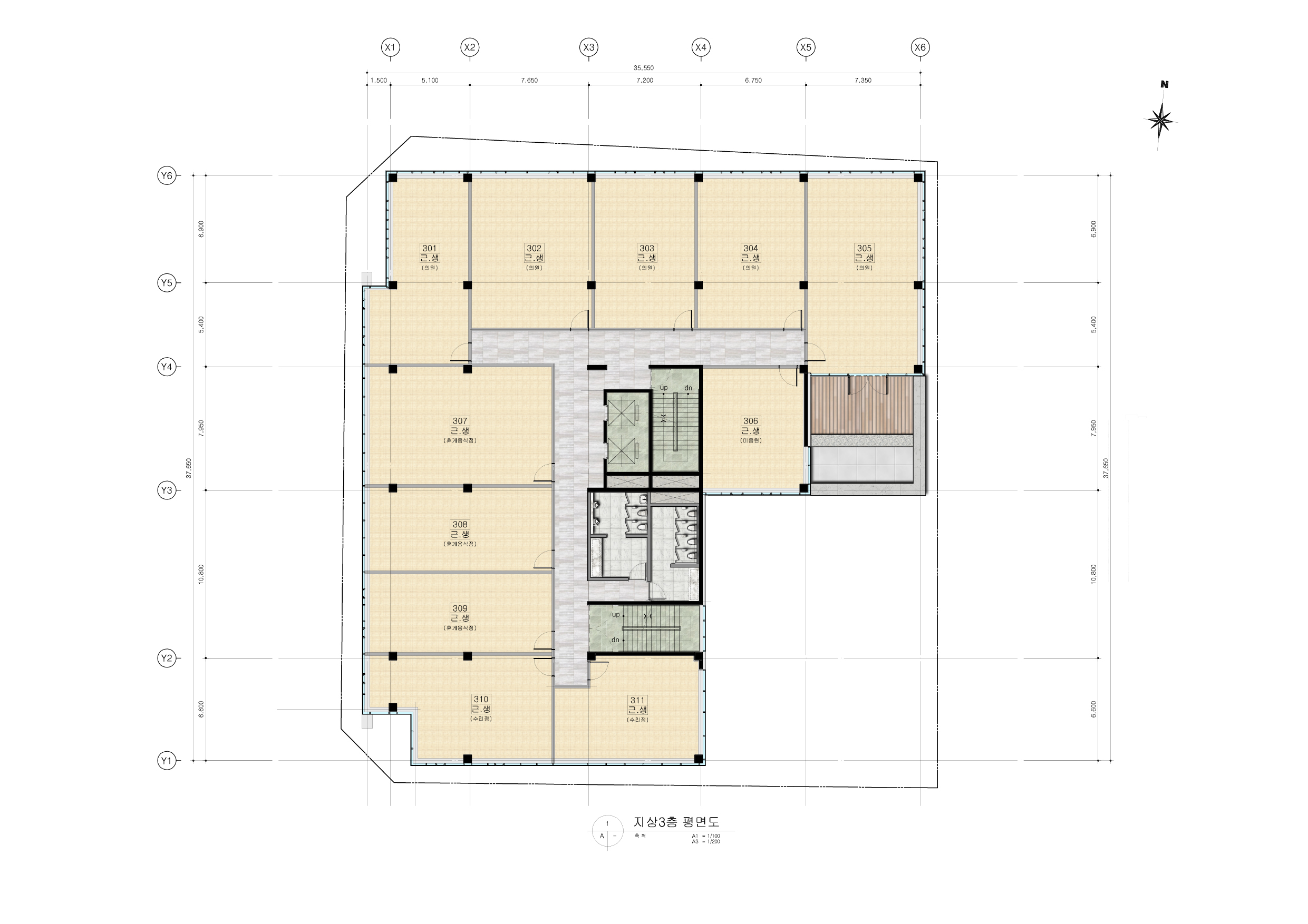
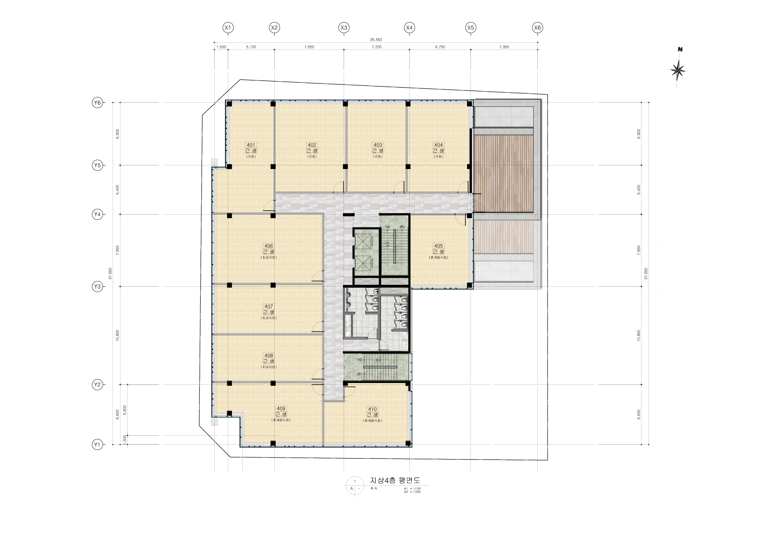
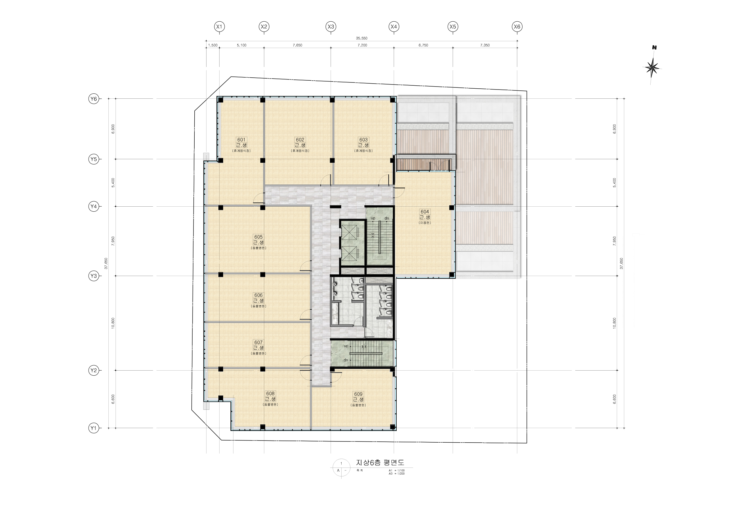
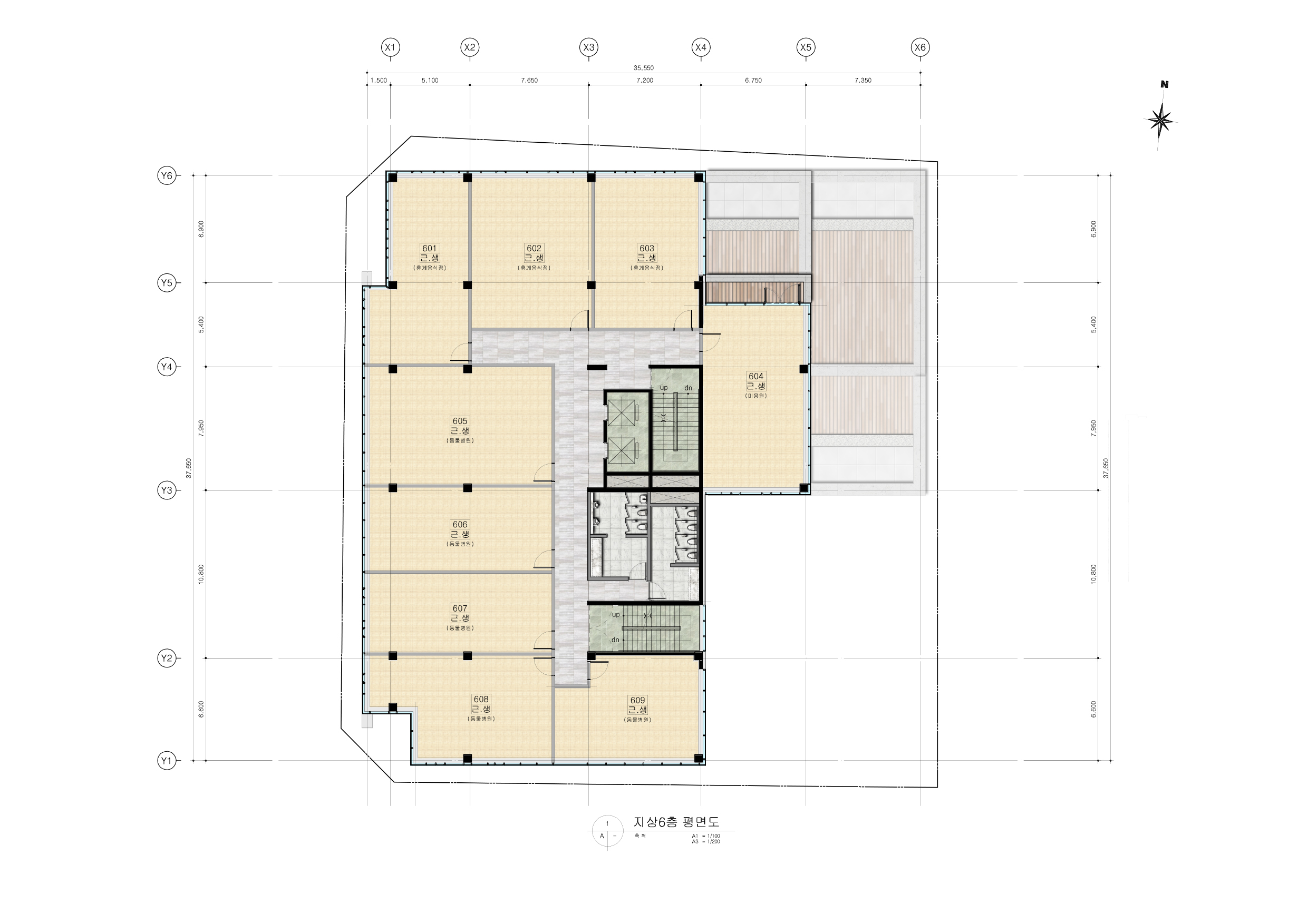
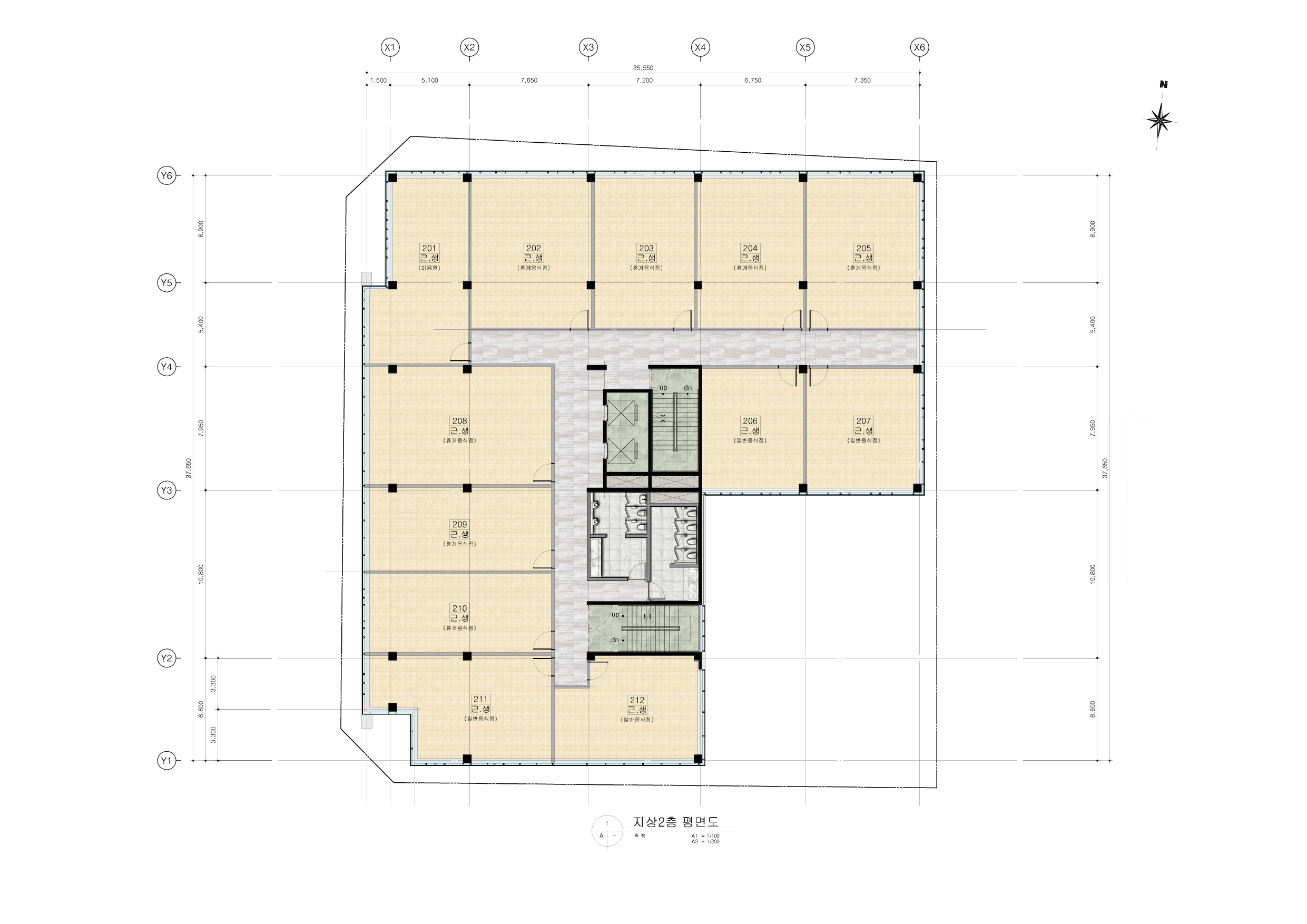
[OO근린생활시설, 상가 평면도]
- Drawing Tool : Auto Cad, Sketch Up
- Retouch : Photoshop
#근린생활시설 평면도 알바, #근생 평면도 알바, #상가 평면도 알바, #도면 알바 _ 포토샵으로 리터치 한 근린생활시설, 근생, 상가 평면도 입니다.
『 스케치업 모델링, 투시도 이미지, 조감도 이미지, 스케치업 알바 적절한 가격에 해드립나다.
캐드도면, 평면도, 평면도 컬리링, 배치도, 입면도, 단면도, 건축도면 등 2D 도면도 적절한 가격에 해드립니다.
재택근무 가능하며, 최대한 빠른시일내에 작업 가능합니다.
스케치업 알바, 3D알바, 투시도알바, 조감도알바, 도면알바, 캐드알바, 배치도알바, 평면도알바, 입면도알바, 스케치업 및 캐드과외가
필요하신분은 연락 부탁드립니다. - 바비부르스 : 010-8853-3964 - 』
'투시도, 조감도, 도면 작업 > 도면 컬러링(배치도, 평면도, 입면도)' 카테고리의 다른 글
| [CG_입면도 알바] _ #005 레지던스, 숙박시설, 리조트 리터치 입면도입니다. (0) | 2022.07.28 |
|---|---|
| [입면도 알바] _ #004 근생, 근린생활시설, 상가 스케치업 입면도입니다. (0) | 2022.07.28 |
| [평면도 알바] _ #008 오피스텔, 주상복합 평면도 입니다. (0) | 2021.10.02 |
| [평면도 알바] _ #007 공동주택, 아파트 평면도 입니다. (0) | 2021.02.01 |
| [평면도 알바] _ #006 근생, 도시형 생활주택 평면도 입니다. (0) | 2021.01.17 |
Comments