바비부르스의 스케치업
[건축 도면_건축 도면 알바, 인테리어 도면 알바, 캐드 도면 알바] _ #002 아파트 평면도 입니다. 본문
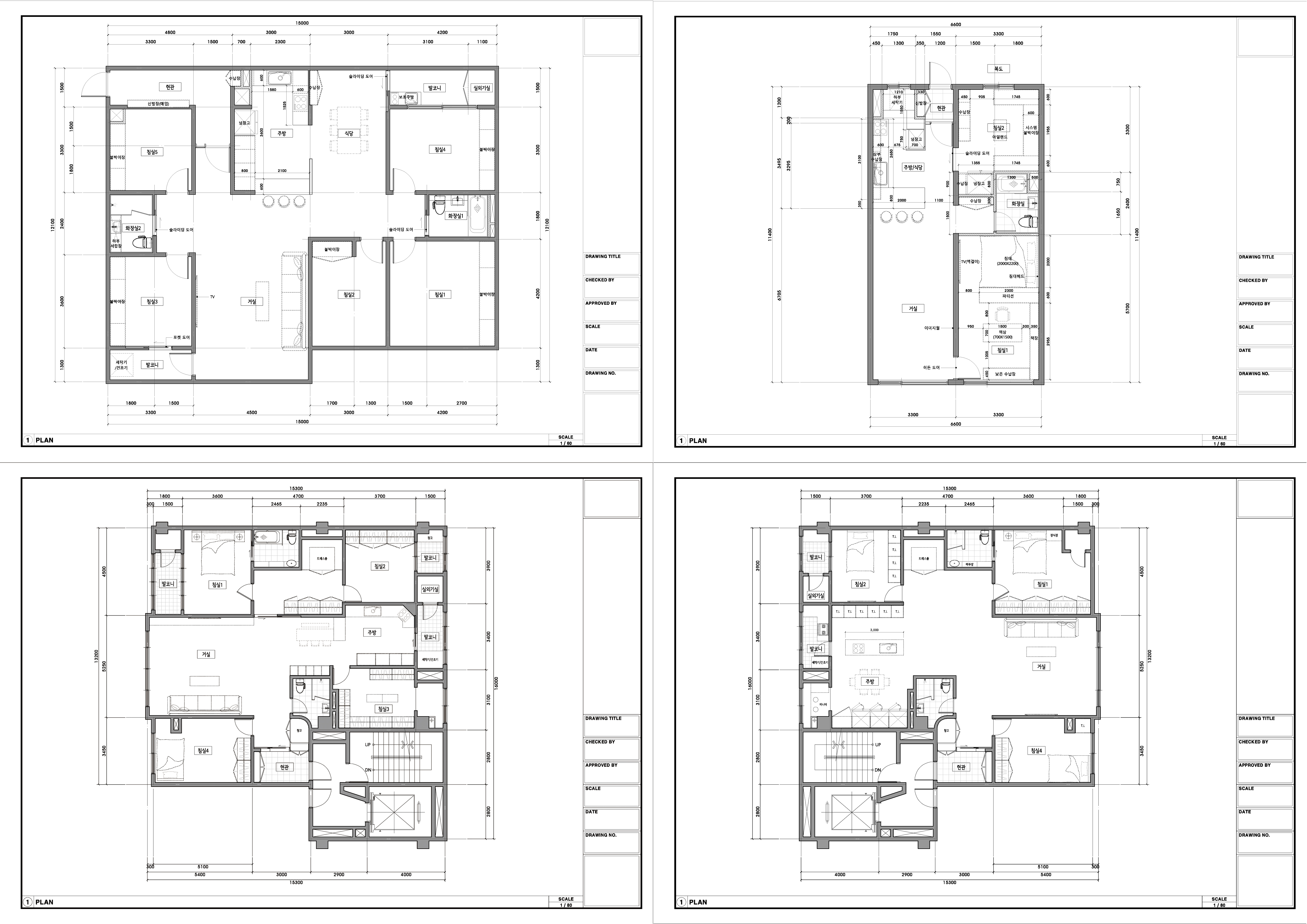
[건축 도면_건축 도면 알바, 인테리어 도면 알바, 캐드 도면 알바] _ #002 아파트 평면도 입니다.
바비부르스 2023. 4. 2. 08:54안녕하세요!!
스케치업 모델링, 투시도, 조감도,
도면(컬러링 도면,캐드 도면,실측도면,허가도면,신고도면작성)
포토샵 편집 및 합성 전문 프리랜서 바비부르스입니다.
#CAD도면 알바, #2D도면 알바, #인테리어 도면 알바
#건축 도면 의뢰 , #도면 알바, #인허가 도면 의뢰 , #인테리어 도면 의뢰
이번에 의뢰 받은 도면은 아파트 평면도 입니다.
이번 작업은 평면 스케치 및 이미지를 제공 받아 아파트 평면도 작업을 진행 하였습니다.
아파트 평면도가 필요하시면 상담을 통해 신속하고 빠르게 도면을 그려 드리고 있습니다.
적절한 가격의 고퀄리티 아파트 평면도가 필요하시면 부담 없이 연락주세요.

[OO아파트 평면도]
- Drawing : Auto Cad
- Retouch : Photoshop
「 스케치업 모델링, 현상설계 스케치업 작업, 투시도 , 조감도, 포토샵 편집 및 합성,
캐드 도면(배치도, 평면도, 입면도, 단면도), 컬러링 도면, 간단한 실내 실측 도면,
건축 허가도면, 건축 신고도면 등의 작업이 필요하신 분은 연락 부탁드립니다.
작업 비용은 면적 및 작업 난이도에 따라 상이하며,
상담전화(010-8853-3964)를 통해 자세히 알려드리겠습니다. 」
상담 전 아래의 공지사항을 확인하셔도 좋습니다.
https://rkdeh64.tistory.com/notice/239
"작업 과정 및 견적에 관한 내용"
더보기 안녕하세요!! 스케치업 모델링, 투시도, 조감도, 도면(컬러 도면,캐드도면,실측도면,허가도면,신고도면작성) 포토샵 편집 및 합성 전문 프리랜서 바비부르스입니다. "작업 과정 및 견적에
rkdeh64.tistory.com
#건축도면 알바, #아파트 도면 알바, #오피스텔 도면 알바, #주택 도면 알바, #인테리어 도면 알바, #실내 인테리어 도면 알바
#건축 허가도면 알바, #건축 신고도면 알바, #카페 도면 알바, #오피스 도면 알바, #현상설계 도면 알바, #CAD 도면 알바
#아파트 평면도 알바, #아파트 배치도 알바, #아파트 입면도 알바, #오피스텔 평면도 알바, #오피스텔 배치도 알바, #오피스텔 입면도 알바
#평면도 알바, #배치도 알바, #입면도 알바, #단면도 알바, #도면 컬러링 알바, #포토샵 도면 알바, #포토샵 알바, #캐드 알바
'건축도면,건축허가도면,건축신고도면' 카테고리의 다른 글
| [건축 도면_건축 도면 알바, 인테리어 도면 알바, 캐드 도면 알바] _ #005 근린생활시설, 상가 평면도 입니다. (0) | 2023.04.24 |
|---|---|
| [건축 도면_건축 도면 알바, 근생 도면 알바, 캐드 도면 알바] _ #005 근생, 상가 평면도 입니다. (0) | 2023.04.07 |
| [건축 도면_건축 도면 알바, 인테리어 도면 알바, 캐드 도면 알바] _ #004 카페, 커피숍 평면도 입니다. (0) | 2023.04.02 |
| [건축 도면_건축 도면 알바, 인테리어 도면 알바, 캐드 도면 알바] _ #003 아파트 평면도 입니다. (0) | 2023.04.02 |
| [건축도면_건축허가도면알바, 건축신고도면알바, 캐드도면알바] _ #001 용도별 건축허가도면, 건축신고도면 입니다. (0) | 2022.12.18 |