바비부르스의 스케치업
[건축 도면_건축 도면 알바, 건축 허가도면 알바, 캐드 도면 알바] _ #009 다가구주택, 근린생활시설 도면 입니다. 본문
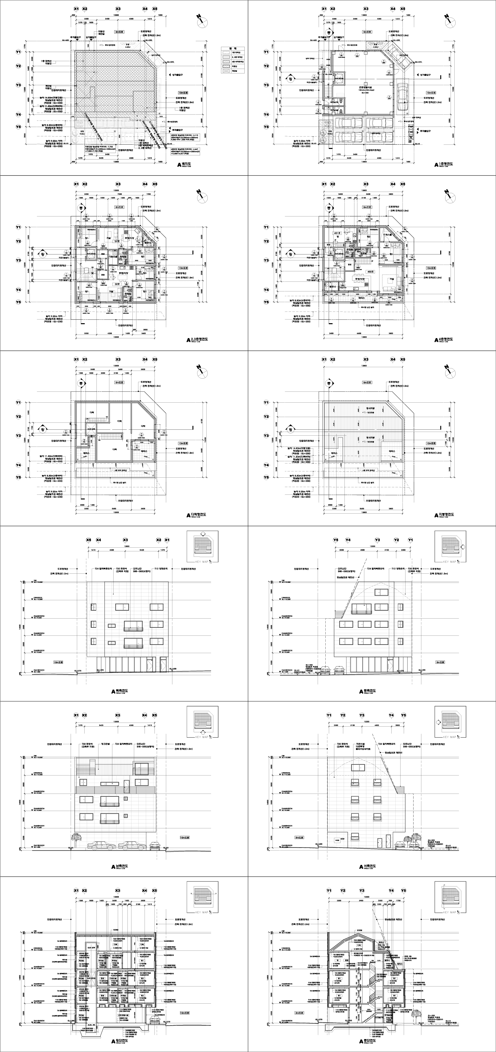
[건축 도면_건축 도면 알바, 건축 허가도면 알바, 캐드 도면 알바] _ #009 다가구주택, 근린생활시설 도면 입니다.
바비부르스 2023. 6. 7. 10:01안녕하세요!!
스케치업 모델링, 투시도, 조감도,
도면(컬러링 도면,캐드 도면,실측도면,허가도면,신고도면작성)
포토샵 편집 및 합성 전문 프리랜서 바비부르스입니다.
이번에 의뢰 받은 도면은 다가구 주택, 근린생활시설 건축 허가도면 입니다.
이번 작업은 계획 평면도를 제공 받아 주택 건축허가도면 작업을 진행 하였습니다.
건축 인허가도면이 필요하시면 상담을 통해 신속하고 빠르게 도면을 그려 드리고 있습니다.
적절한 가격의 고퀄리티 주택 건축 허가도면이 필요하시면 부담 없이 연락주세요.

[OO다가구주택, 근린생활시설 허가도면]
- Drawing : Auto Cad
- Retouch : Photoshop
「 스케치업 모델링, 현상설계 스케치업 작업, 투시도 , 조감도, 포토샵 편집 및 합성,
캐드 도면(배치도, 평면도, 입면도, 단면도), 컬러링 도면, 간단한 실내 실측 도면,
건축 허가도면, 건축 신고도면 등의 작업이 필요하신 분은 연락 부탁드립니다.
작업 비용은 면적 및 작업 난이도에 따라 상이하며,
상담전화(010-8853-3964)를 통해 자세히 알려드리겠습니다. 」
상담 전 아래의 공지사항을 확인하셔도 좋습니다.
https://rkdeh64.tistory.com/notice/239
"작업 과정 및 견적에 관한 내용"
더보기 안녕하세요!! 스케치업 모델링, 투시도, 조감도, 도면(컬러 도면,캐드도면,실측도면,허가도면,신고도면작성) 포토샵 편집 및 합성 전문 프리랜서 바비부르스입니다. "작업 과정 및 견적에
rkdeh64.tistory.com
#건축도면 알바, #주택 도면 알바, #오피스텔 평면도 알바, #근린생활시설 인테리어 도면 알바, #인테리어 도면 알바, #실내 인테리어 도면 알바
#건축 허가도면 알바, #건축 신고도면 알바, #카페 도면 알바, #현상설계 도면 알바, #CAD 도면 알바, #평면도 알바
#배치도 알바, #입면도 알바, #단면도 알바, #도면 컬러링 알바, #포토샵 도면 알바
'건축도면,건축허가도면,건축신고도면' 카테고리의 다른 글
| [건축 도면_건축 도면 알바, 건축 신고도면 알바, 캐드 도면 알바] _ #011 주택 옥상 리모델링 도면 입니다. (1) | 2023.08.19 |
|---|---|
| [건축 도면_건축 도면 알바, 건축 허가도면 알바, 캐드 도면 알바] _ #010 다세대주택 도면 입니다. (0) | 2023.07.20 |
| [건축 도면_건축 도면 알바, 인테리어 도면 알바, 캐드 도면 알바] _ #008 아파트, 오피스텔 평면도 입니다. (1) | 2023.05.24 |
| [건축 도면_건축 도면 알바, 인테리어 도면 알바, 캐드 도면 알바] _ #007 상가, 식당, 음식점 평면도 입니다. (1) | 2023.05.13 |
| [건축 도면_건축 도면 알바, 인테리어 도면 알바, 캐드 도면 알바] _ #006 아파트 평면도 입니다. (0) | 2023.04.24 |