Notice
Recent Posts
바비부르스의 스케치업
[스케치업_모델링 알바] _ #005 원룸, 투룸 붙박이 가구 스케치업 투시도 입니다. 본문





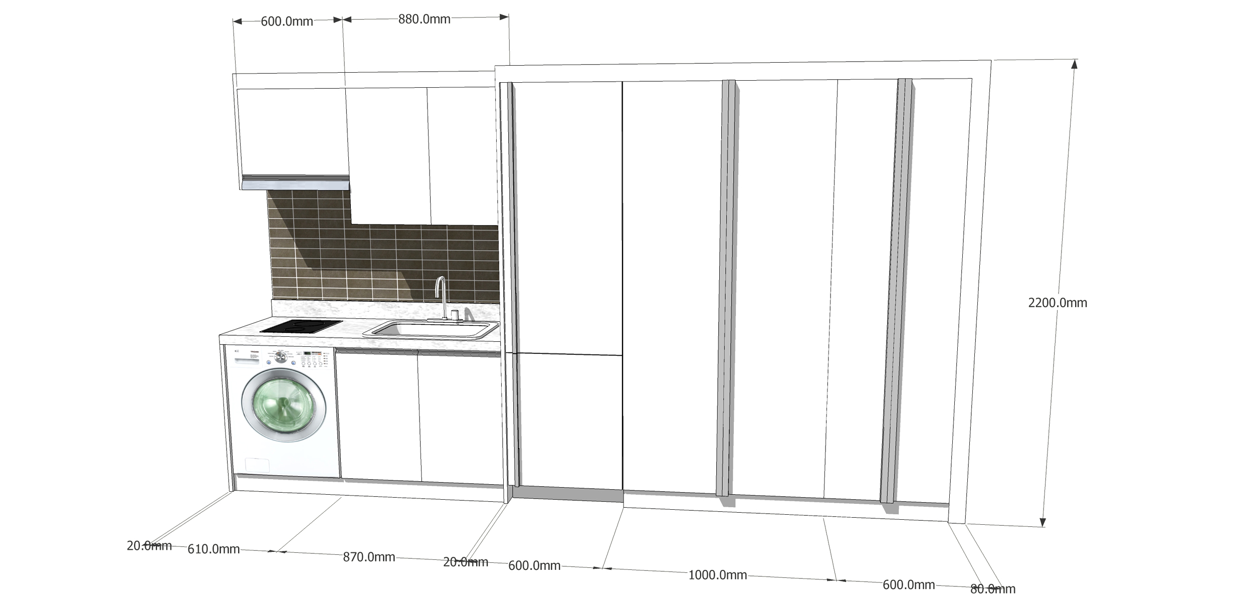
[OO원룸, 투룸 붙박이 가구 스케치업 투시도]
- Drawing Tool : Sketch Up, Auto Cad
- Retouch : Photoshop
#스케치업 알바, #모델링 알바, #투시도 알바 _ 스케치업으로 모델링 한 원룸형주택 붙박이 주방가구, 투룸형주택 붙박이 주방가구 스케치업 투시도 입니다.
『 스케치업 모델링, 투시도 이미지, 조감도 이미지, 스케치업 알바 적절한 가격에 해드립나다.
캐드도면, 평면도, 평면도 컬리링, 배치도, 입면도, 단면도, 건축도면 등 2D 도면도 적절한 가격에 해드립니다.
재택근무 가능하며, 최대한 빠른시일내에 작업 가능합니다.
스케치업 알바, 3D알바, 투시도알바, 조감도알바, 도면알바, 캐드알바, 배치도알바, 평면도알바, 입면도알바, 스케치업 및 캐드과외가
필요하신분은 연락 부탁드립니다. - 바비부르스 : 010-8853-3964 - 』
'투시도, 조감도, 도면 작업 > 스케치업' 카테고리의 다른 글
| [스케치업_모델링 알바] _ #007 원룸, 투룸 붙박이 가구 스케치업 투시도 입니다. (0) | 2015.06.22 |
|---|---|
| [스케치업_모델링 알바] _ #006 원룸, 투룸 붙박이 가구 스케치업 투시도 입니다. (0) | 2015.05.22 |
| [스케치업_모델링 알바] _ #004 호텔 스케치업 투시도 입니다. (0) | 2015.03.12 |
| [스케치업_모델링 알바] _ #003 아파트 스케치업 투시도 입니다. (0) | 2015.03.12 |
| [스케치업_모델링 알바] _ #002 기념탑 스케치업 투시도 입니다. (0) | 2015.03.12 |
Comments